Program : Administrative Welfare Center
Location : Yeonghwa-dong, Jangan-gu, Suwon-si, Gyeonggi-do
Site Area : 1,447.32m²
Total Floor Area : 1,117.70m²
Building Scope : B1F, 1F
Location : Yeonghwa-dong, Jangan-gu, Suwon-si, Gyeonggi-do
Site Area : 1,447.32m²
Total Floor Area : 1,117.70m²
Building Scope : B1F, 1F
수원 화성의 계승
이 프로젝트는 수원 화성의 형태를 모티브로 합니다. 성벽은 본디 방어와 경계의 상징이지만, 장안문 앞에 경관광장을 끼고 자리한 이 주민문화센터는 그 의미를 역전시킵니다.
견고해보이는 성벽의 조형언어를 차용했지만, 경관광장에 반응하는 연속적인 아치형 개구부를 두어 그 너머 한옥 공연장과 내부 마당을 슬쩍 보여주는 - ‘감춤과 드러냄’의 미학으로 방문객의 시선을 유도합니다. 이 차갑고 무겁지만 - ‘베일’처럼 들이워진 성벽 구조물은 그 너머의 공간에 대한 신비감과 호기심을 자극하며 사람들로 하여금 아치를 통과해 안으로 들어서고 싶은 마음을 유도합니다.
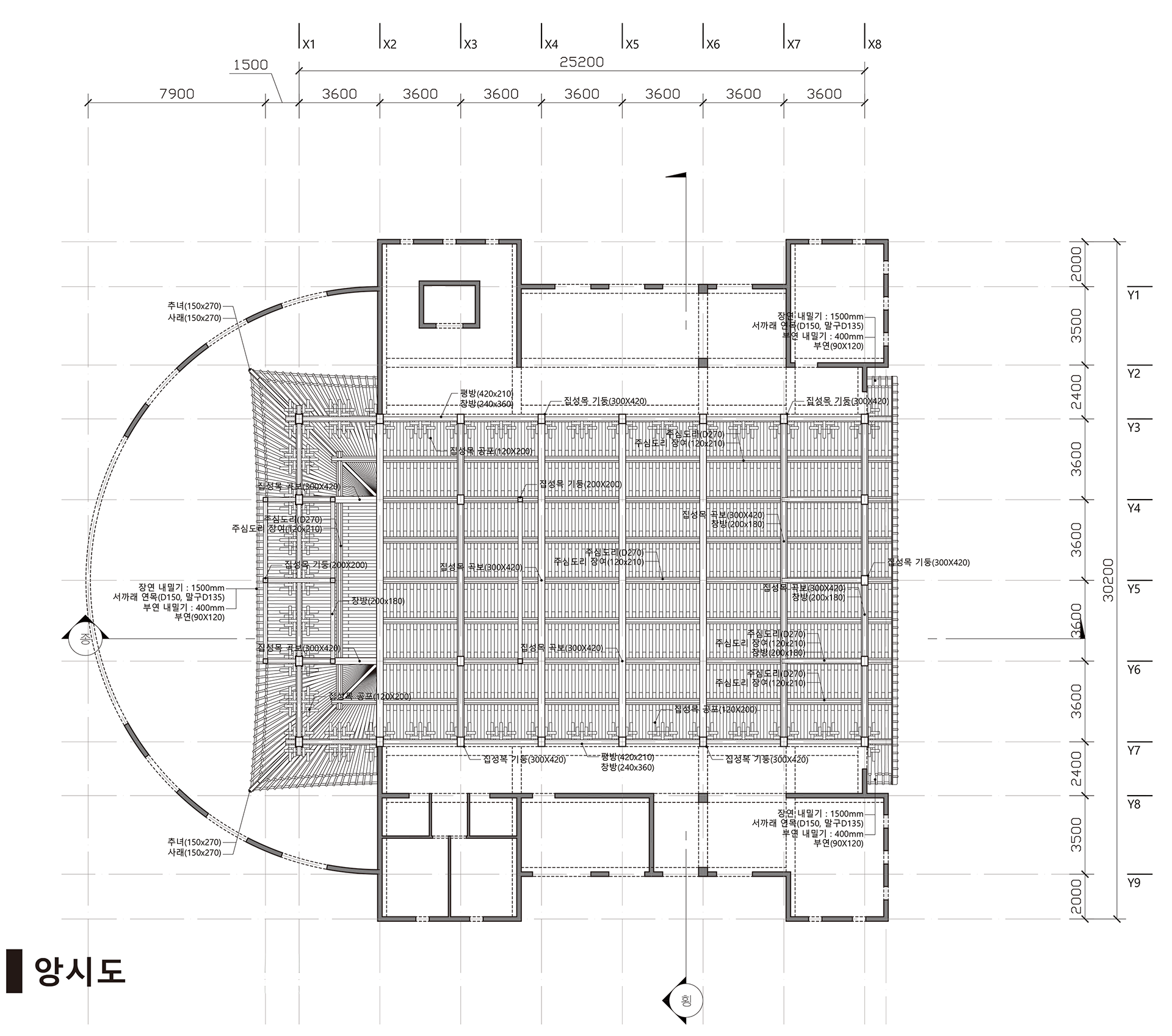
실학 정신의 계승 : 대경간 곡보와 철근 콘크리트 성채
수원 화성은 거중기와 같은 신기술을 도입하고 돌과 벽돌을 함께 사용하는 등 당대 최고의 기술과 합리성을 추구한 ‘실학’정신의 산물입니다. 이 프로젝트는 수원 화성의 형태 뿐만 아니라 그 안에 담긴 ‘실용’의 정신을 계승합니다.
건축물의 중심에 자리한 한옥 공연장은 기둥이 없는 대공간을 확보하기 위해 전통 목구조를 현대적으로 재해석한 대경간 곡보를 사용했습니다. 이 거대한 아치형 목구조가 지붕을 떠받치면서 발생하는 수평력(횡력)을 바깥을 둘러싼 철근 콘크리트 성채가 마치 고딕 건축의 플라잉 버트리스처럼 단단히 지지해줍니다.
이는 한옥의 목구조(전통)과 철근 콘크리트(현대)라는 이질적인 재료가 힘의 논리에 따라 명확하게 결합되는 모습을 보여줍니다. 외부의 성벽이 단순한 장식이 아닌 내부 구조와 일체화된 ‘실용적’구조물로 작동하는것 - 이것이 이 프로젝트가 계승한 수원 화성의 실학 정신입니다.
외강내유 : 한옥을 품은 성채
이 주민문화센터의 방문자는 견고하고 차가운 질감의 성채를 마주하는 것에서 시작합니다. 역사적 건축물(화성)의 장중함을 연상시키는 이 단단한 외피는 방문자의 첫 인상을 지배합니다. 하지만 아치형 관문을 통과하는 순간, 장면은 극적으로 전환됩니다. 방문자들은 그 안에 소중히 숨겨져 있던 따뜻하고 부드러운 질감의 목조 한옥 공연장을 발견하게 됩니다.
이 시퀀스는 차가운 철근 콘크리트 성채(현대/외피)에서 따뜻한 목재 한옥(전통/내피)로 이어지는 물리적인 체험을 제공합니다. 이 여정을 통해 경험하는 극명한 물성의 대비는 견고한 성채로 상징되는 현대가 부드러운 한옥이 상징하는 전통을 품고있는 - 이 건축물의 정체성을 방문객에게 극적이고 인상깊게 보여줍니다.